用瀬地区公民館は地域の皆さんとのふれあいを大切にしています。
駐車場 7台


-
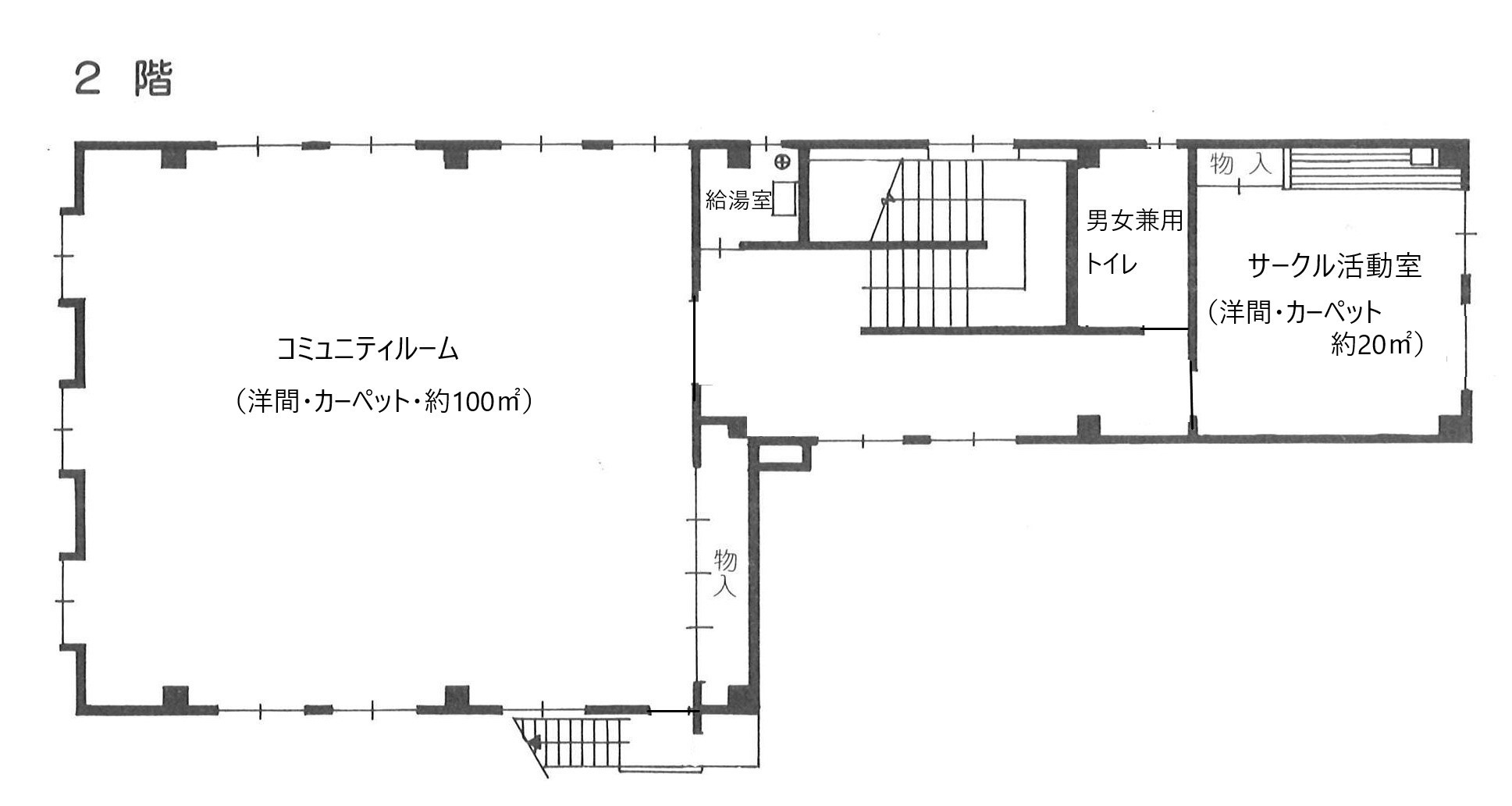
コミュニティルーム
【設備】
・ホワイトボード
・長机20台
・座机10台
・パイプ椅子66脚
・演台 -
サークル活動室
【設備】
・座机4台
・座布団
・姿鏡 -
給湯室
【設備】
・ガスコンロ ・シンク
・やかん ・コップ等
公民館使用について
開館・閉館時間 午前8時30分~午後10時 職員在中時間 午前8時30分~午後5時15分
※夜間利用の方については、使用日までに申請書の記入をお願いします。
※年末年始(12月29日~1月3日)は閉館とします。
※健康増進法の一部改正に、敷地内禁煙となっています。
※利用日までに、使用申込書を記入し、提出してください。。(平日午前8時30分~午後5時15分)